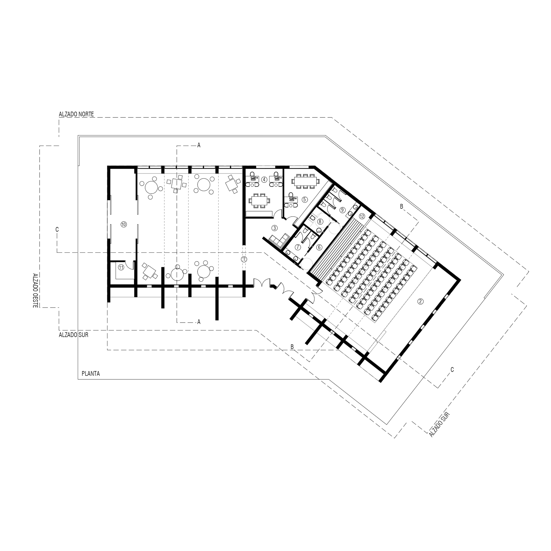
CENTRO CÍVICO CÁCERES EL VIEJO (CÁCERES)

CONCEPTO: : Concurso de redacción proyecto de ejecución, dirección facultativa y coordinador de seguridad y salud de las obras de Centro Cívico Cáceres el Viejo.

CLIENTE: Ayuntamiento de Cáceres

AÑO: 2022

SUPERFICIE: 457,77m2

PRESUPUESTO: 238.578,56€