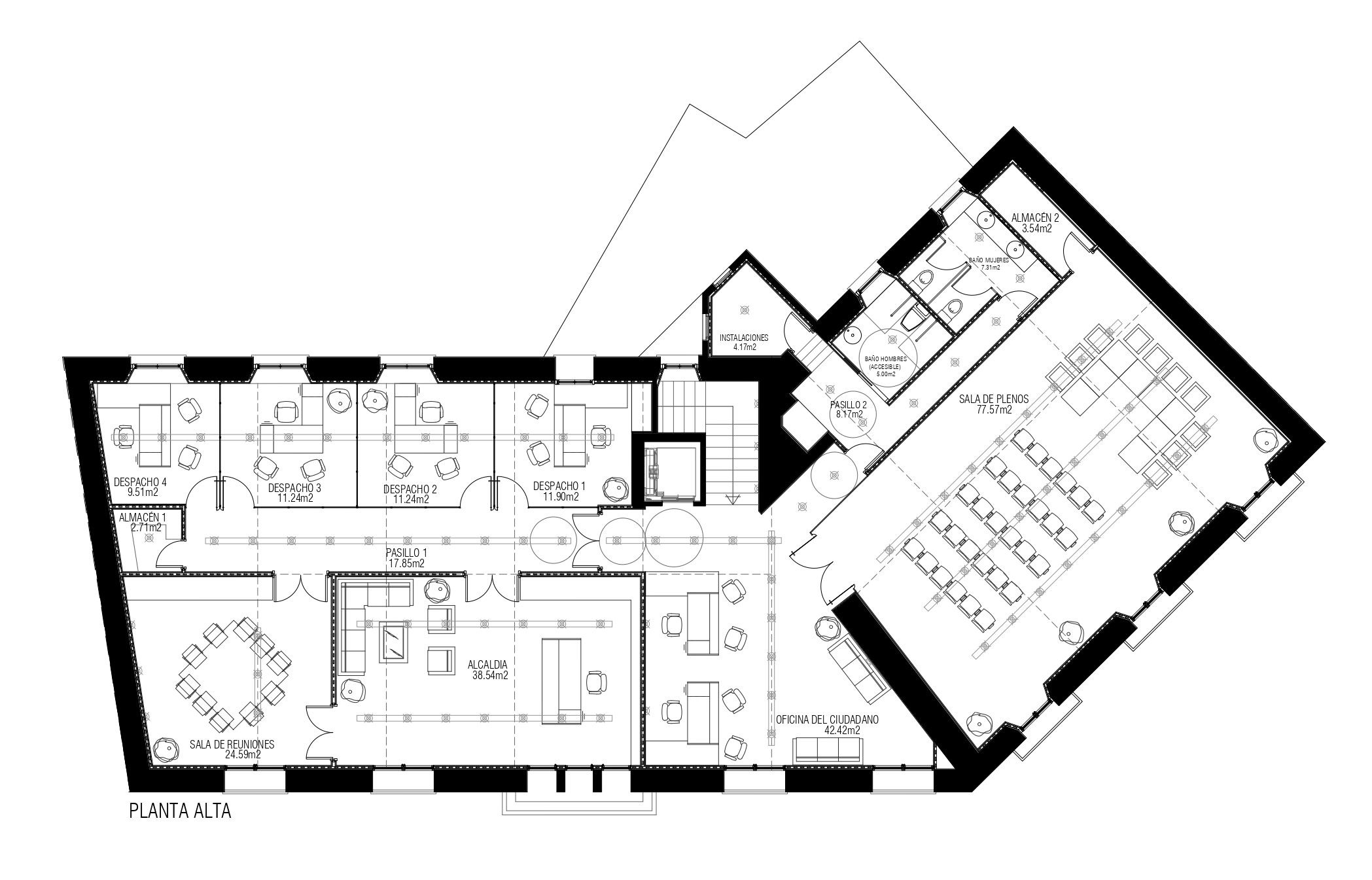
REHABILITACIÓN AYUNTAMIENTO QUINTANA DE LA SERENA (BADAJOZ)
CONCEPTO: Concurso de redacción de proyecto, dirección de obra y coordinación de seguridad y salud de rehabilitación de edificio Ayuntamiento de Quintana de la Serena. (Badajoz)
CLIENTE: Ayuntamiento de Quintana de la Serena
AÑO: 2023
SUPERFICIE: 605,00m2
PRESUPUESTO: 251.889,78€
