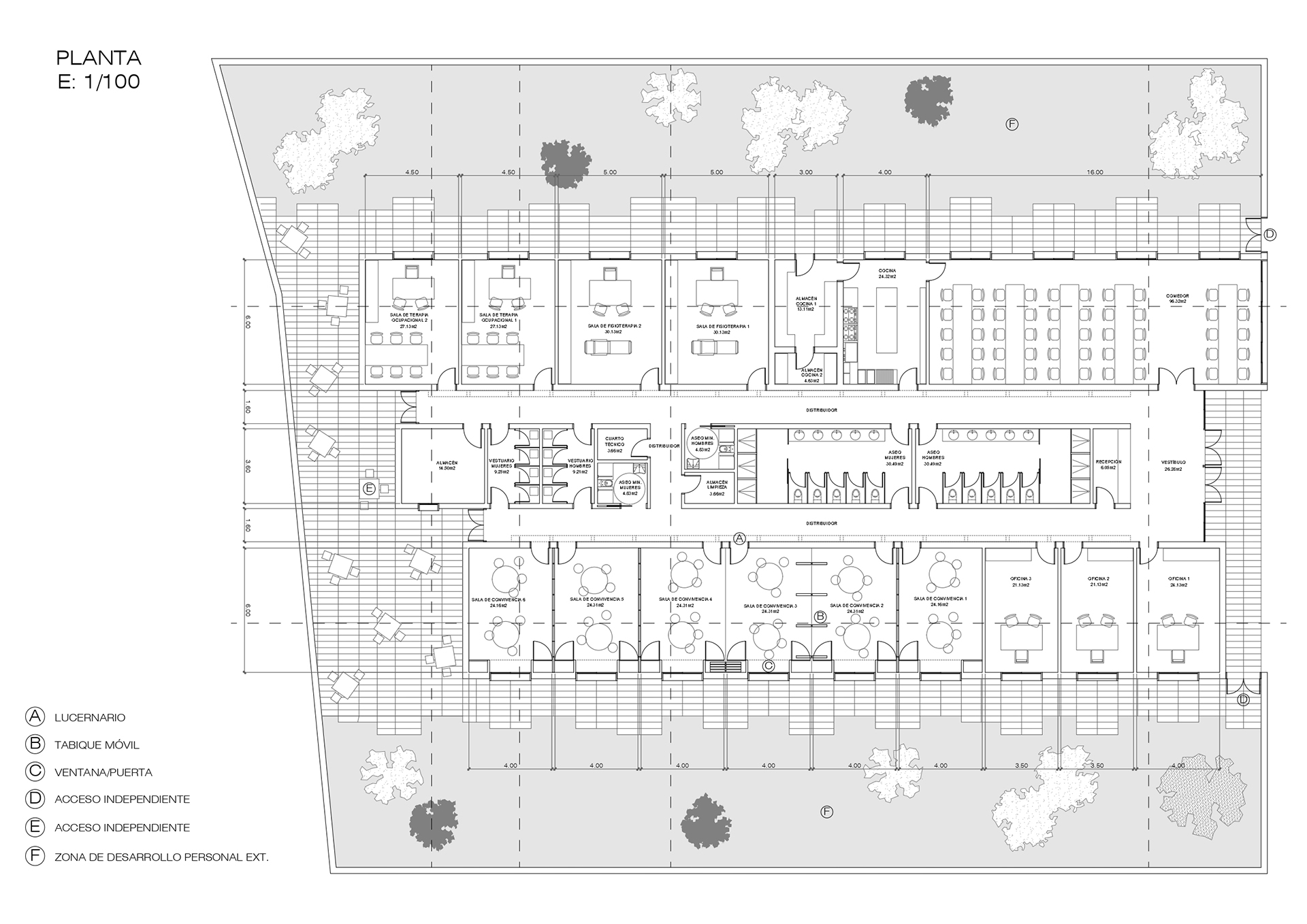
6 VIVIENDAS CON APOYO Y CENTRO DE DÍA (TORRIJOS)
CONCEPTO: Concurso de redacción del proyecto y dirección facultativa de seis viviendas con apoyo y un centro de día para personas con diversidad intelectual. (Torrijos, Toledo)
CLIENTE: Secretaría General de la Conserjería de Bienestar Social de la Junta de Comunidades de Castilla – La Mancha.
AÑO: 2022
SUPERFICIE: 990,45m2 (Viviendas) + 686,65m2 (Centro de día)
PRESUPUESTO: 1.457.970,75€
