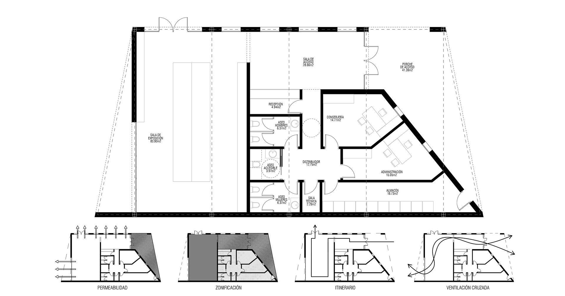
CENTRO DE INTERPRETACIÓN “HUERTA MONTERO” CONCEPTO: Concurso de redacción proyecto básico y de ejecución y dirección de obra para Centro de Interpretación “Huerta Montero”. CLIENTE: Ayuntamiento de Almendralejo AÑO: 2022 SUPERFICIE: 197,11m2 PRESUPUESTO: 231.662,02€