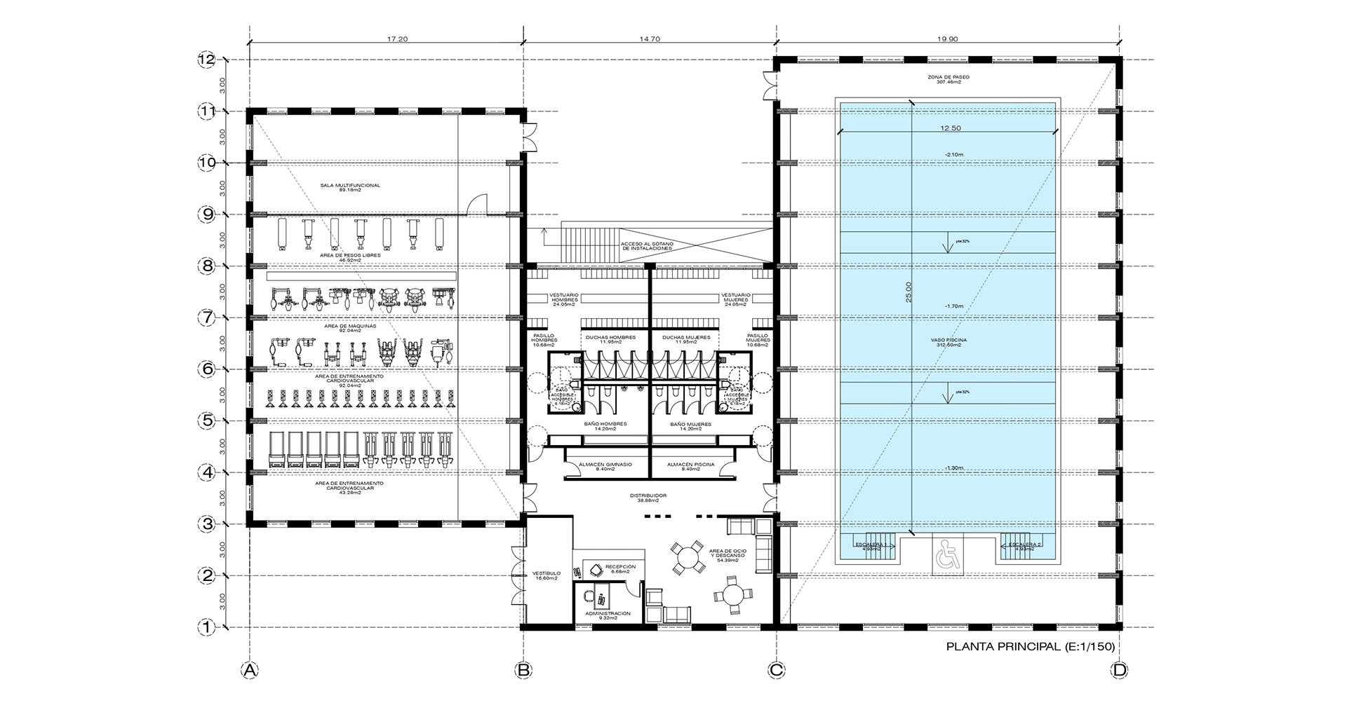
COMPLEJO DEPORTIVO / PISCINA + GIMNASIO (CASAR DE CÁCERES)

CONCEPTO: Concurso de proyectos con intervención de jurado para la redacción del proyecto de piscina climatizada y gimnasio en Casar de Cáceres (Cáceres)

CLIENTE: Ayuntamiento de Casar de Cáceres

AÑO: 2023

SUPERFICIE: 1.272,50m2

PRESUPUESTO: 2.419.032,00€

Diagramas